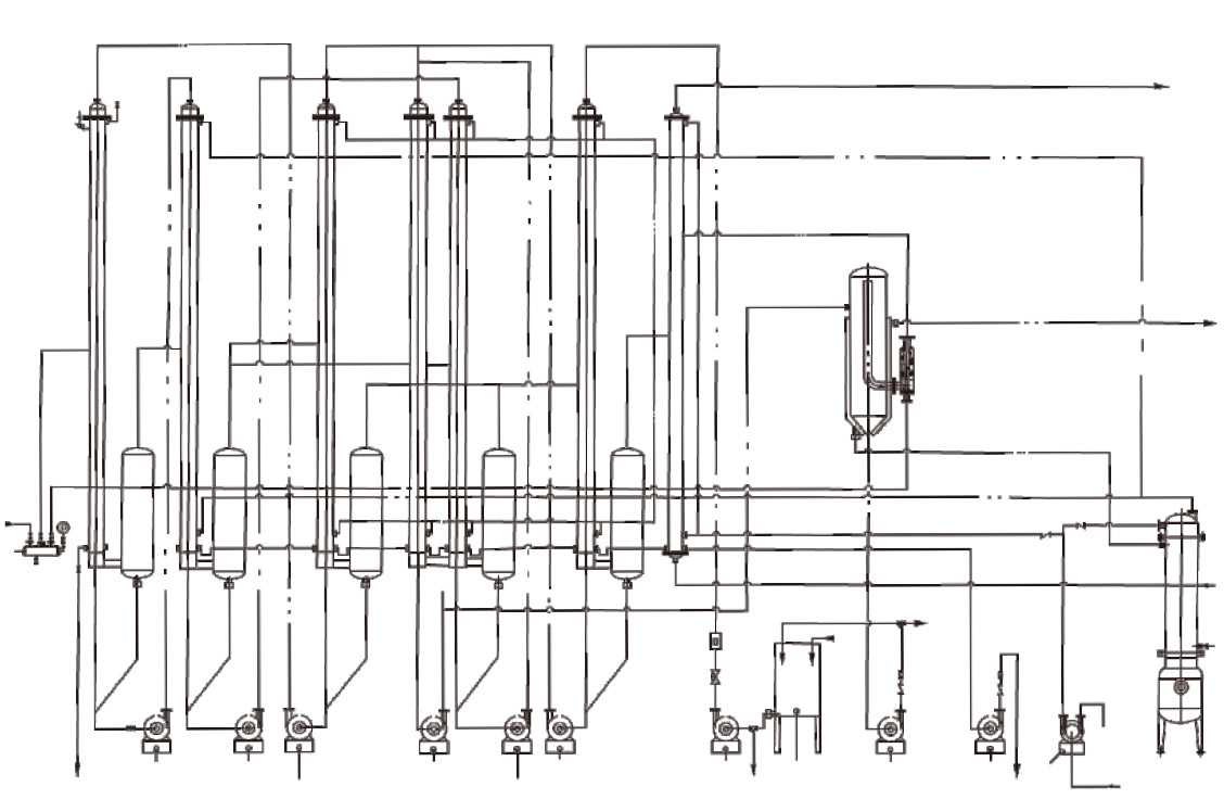
Single Effect Falling Film Evaporator
Characteristics1.Full closed process, ...
Click To View


Model | Double-e?ect | Triple-e?ect | Four-e?ect | Five-e?ect |
Water evaporating capacity Kg /h | 1200-4000 | 3600-15000 | 8000-50000 | 10000-65000 |
Feed Material Density% | According to material | |||
Discharge Material Density% | According to material | |||
Steam pressure Mpa | 0.5~0.8 | |||
Steam consumption Kg /kg evaporation amount(with heat pressure pump) | 0.38 | 0.28 | 0.23 | 0.19 |
Evaporating temperature℃ | 45~90 | |||
Sterilizing temperature℃ | 90~110 | |||
Cooling water cost T/T evaporation amount | 11 | 8 | 7 | 6 |
Note:We can design and manufacture according to customers special requirement.

